Aperçu
Adresse Rue Val du puits 8, 1390 Bossut
Peb PEB PEB_A
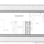
Surface totale 388 m2
Surface du terrain 1441 m2
Surface du séjour 40 m2
Nombre de garages 1
Descriptif

Un cadre de vie privilégié et des performances énergétiques d'avenir

TRADI-CONSTRUCT a le plaisir de vous présenter en exclusivité son nouveau projet situé à Bossut, au cœur de la charmante commune de Grez-Doiceau. Cette villa 4 façades, actuellement en cours de réalisation, allie l'élégance de l'architecture brabançonne aux technologies de confort les plus modernes.

Érigée sur un magnifique terrain de 14 ares 41 centiares, cette propriété offre un espace extérieur généreux, garantissant calme, intimité et une vue dégagée sur la campagne environnante.

Caractéristiques principales :

  • Idéal pour profession libérale : le rez-de-chaussée dispose d'un espace bureau indépendant, parfaitement conçu pour accueillir une activité professionnelle à domicile ou un espace de télétravail au calme.

  • Efficacité énergétique (label PEB A) : Profitez d'une habitation à la pointe de l'économie d'énergie grâce à :

    • Une enveloppe globale à haute isolation thermique ;

    • Un système de pompe à chaleur performant ;

    • 12 panneaux photovoltaïques déjà inclus ;

    • Des châssis en triple vitrage pour un confort acoustique et thermique optimal.

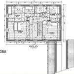
  • 6 Chambres & 3 Salles de bains : la villa offre six chambres spacieuses et trois salles de bains/douches modernes, garantissant intimité et fluidité pour toute la famille.

Les points forts :

  • Localisation stratégique : Située dans le village paisible de Bossut, vous bénéficiez d'un environnement verdoyant et authentique, tout en restant à proximité rapide des axes (E411/N25), des écoles et du centre de Grez-Doiceau.

  • Terrain de 14a 41ca : Un jardin spacieux entourant les 4 façades de la villa, offrant de multiples possibilités d'aménagement extérieur.

Informations financières
Prix : 819 000 € hors taxes

Prix demandé hors TVA et hors frais de notaire (hors éventuel droits d’enregistrement)

Autres informations
Disponibilité A l'acte
Type de chauffage Pompe à Chaleur
Raccordement eau oui
Raccordement électrique oui
Panneaux solaires oui
Type de vitrage Triple