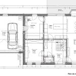
Aperçu
Adresse Rue Escadron Brumagne 16A, 1342 Limelette
Peb PEB PEB_A
Surface totale 386 m2
Surface du terrain 3269 m2
Surface du séjour 36 m2
Nombre de garages 2
Descriptif

Un cadre de vie privilégié et des performances énergétiques d'avenir

 

TRADI-CONSTRUCT a le plaisir de vous présenter en exclusivité son nouveau projet situé à Ottignies-Louvain-la-Neuve (Limelette). Cette villa brabançonne, actuellement en cours de réalisation, allie le charme de l'architecture traditionnelle aux technologies de confort les plus modernes.

Érigée sur un magnifique terrain de 32,69 ares, cette propriété offre un espace extérieur rare en Brabant Wallon, garantissant calme et intimité.

 

Caractéristiques principales :

 

Idéal pour profession libérale : le rez-de-chaussée dispose d'un espace bureau indépendant, parfait pour accueillir une activité professionnelle à domicile.

Efficacité énergétique (label PEB A) : profitez d'une habitation à la pointe de l'économie d'énergie grâce à :

  • Une enveloppe globale à haute isolation thermique ;
  •  
  • Un système de pompe à chaleur performant ;
  •  
  • 12 panneaux photovoltaïques déjà inclus ;
  •  
  • Des châssis en triple vitrage pour un confort acoustique et thermique optimal.

 

Personnalisation : vous avez encore la main sur l'ambiance de votre futur foyer ! Plusieurs finitions intérieures, prévues dans le budget, restent à votre choix (sanitaires, carrelages, menuiseries intérieures, etc.).

 

Les points forts :

 

Modulabilité : possibilité d'aménager le 2ème étage via un escalier fixe déjà prévu. (2 chambres complémentaires + SDD)

Localisation stratégique : proximité immédiate des axes majeurs, des écoles et de la gare, tout en bénéficiant de l'environnement verdoyant de Limelette.

Grand terrain : un jardin de plus de 32 ares offrant de multiples possibilités d'aménagement.

Autres informations
Disponibilité A l'acte
Type de chauffage Pompe à Chaleur
Raccordement eau oui
Raccordement électrique oui
Panneaux solaires oui
Type de vitrage Triple